HALA S1
PRODEJNÍ HALA se zázemím a skladem – K PRONÁJMU od 06/2027
PRODEJNÍ HALA se zázemím a skladem – K PRONÁJMU
V areálu ARMEX Holding a.s. v Děčíně nabízíme k pronájmu prodejnu nepotravinového zboží, umístěnou bezprostředně u frekventované Benešovské ulice (tč. sil. II/262, výjezd z Děčína směrem na Benešov n. Pl. a Českou Lípu, s průjezdem cca 10 tis. aut denně; budoucí trasa přeložky sil. I/13), v blízkosti čerpací stanice pohonných hmot a dalších již zavedených prodejen. Součástí pozemku (parc. č. 2758/1 v k.ú. Děčín) o celkové ploše 5.780 m2 bude novostavba jednopodlažní zateplené haly o výměře užitné plochy 689m2, (z toho prodejna 500 m2, sklad 125 m2, sociální a technické zázemí ostatní – možno upravit v rámci klientských změn), 38 venkovních parkovacích stání (včetně 2x nabíjecí stanice pro elektromobily; dopravní napojení z Folknářské ulice), udržovaná zeleň i venkovní skladová a manipulační plocha pro zásobování mimo zákaznický koridor. Vytápění a chlazení interiéru prodejní haly (klimatizace i ohřev teplé užitkové vody) je řešeno nízkonákladově, na bázi tepelného čerpadla. Součástí fasády jsou i kotevní prvky pro instalaci reklamních ploch provozovatele o celkové ploše 40 m2. Výstavbu plánujeme zahájit podle již vydaného a pravomocného stavebního povolení v roce 2026, dokončení a předání novostavby do užívání předpokládáme nejpozději v první polovině roku 2027. Nyní je tedy jedinečná příležitost přistoupit k finální fázi přípravy a klientskými změnami si nechat vytvořit prostory na míru konkrétního způsobu užívání provozovatelem. Nabízíme i možnost prohlídky již funkčních obdobných objektů v areálu ARMEX Děčín.
V případě zájmu či jakéhokoliv dotazu nás neváhejte kontaktovat.





ke stažení Inzerce – Hala S1 (2025-04-04)
HALA K
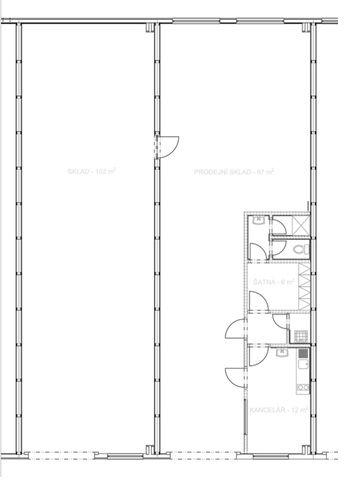
SKLAD se zázemím

V areálu ARMEX Holding a.s. v Děčíně na Folknářské ulici nabízíme k pronájmu skladové prostory se zázemím o celkové výměře 215 m2. Prostor je rozdělen na dvě části – skladový prostor a prodejní skladovou plochu se zázemím – kancelář s kuchyňským koutem, šatna, úklidová místnost, WC, sprchový kout. Veškeré sítě v místě, prostory jsou vytápěny. Parkovací místa přímo u skladu.
V případě zájmu či jakéhokoliv dotazu nás neváhejte kontaktovat.

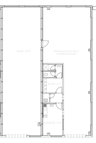
VÝROBNÍ/SKLADOVÉ prostory se zázemím
V areálu ARMEX Holding a.s. v Děčíně na Folknářské ulici nabízíme k pronájmu výrobní/skladové prostory se zázemím o celkové výměře 210 m2. Prostor je rozdělen na dvě části – sklad a prodejní skladovou/výrobní plochu se zázemím – kancelář s kuchyňským koutem, šatna, úklidová místnost, WC, sprchový kout. Veškeré sítě v místě, prostory jsou vytápěny. Parkovací místa přímo u skladu.
V případě zájmu či jakéhokoliv dotazu nás neváhejte kontaktovat.

